Property Links
Boambee East
Sold for $450,000
3 Egret Close
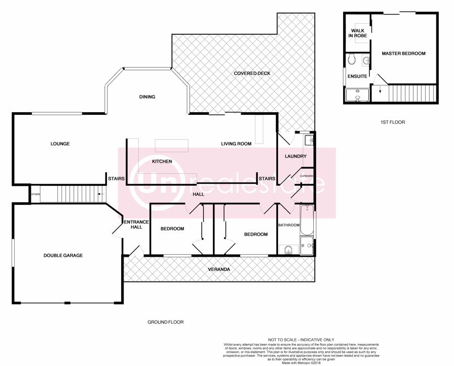
Split level and spacious, this home is sited on a generous 899sqm block in a quiet cul de sac, a couple of minutes level walk to public transport and an easy distance to Boambee Easts' IGA.
The siting of the home allows space in the rear yard for a pool, trampoline, swings, cubby, in fact, virtually anything any child could want and the huge deck and covered entertaining area, make this a focal point of the home.
The layout is practical-split level with the main bedroom, ensuite and walk in robe downstairs, two double bedrooms on the entry level, and generous living areas running the full length of the home.
To one side, there's a large formal lounge area, complete with wood heater, (and easily turned into another bedroom if needed), whilst the air conditioned kitchen, dining, family room have gleaming polished timber floors and overlook the yard, opening onto the huge deck.
www.unre.com.au/egr3
LAND SIZE: 899sqm (Approx) RATES: $2,953pa (Approx) BUILT: 1993 (Approx)
We have obtained all information in this document from sources we believe to be reliable; however, we cannot guarantee its accuracy. Prospective purchasers are advised to carry out their own investigations.


